CANNATÀ & FERNANDES, HOUSING, BY MARIO PISANI

A Vila Nova de Gaia, sur une parcelle de 7,00 x 3,30 m, Cannatà&Fernandes ont rénové un petit édifice laissé à l’abandon et en très mauvais état, le transformant en une maison contemporaine de 50 mètres carrés répartis sur trois niveaux. Située le long de la Calçada da Serra, face au Douro et surplombant le cœur historique de Porto, cette maison offre une vue imprenable sur le centre historique de la ville et, malgré sa taille modeste, représente une opportunité exceptionnelle de créer une demeure de prestige.

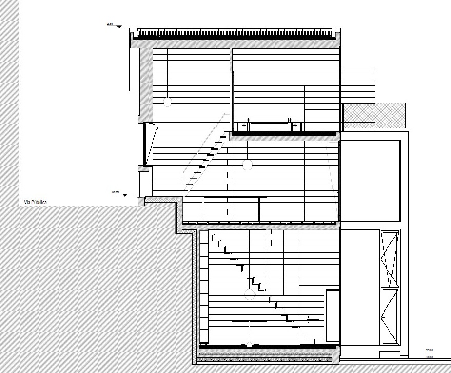
Deux entrées, l'une au niveau de la rue et l'autre, en contrebas, donnant sur une voie privée, permettent aux deux chambres principales d'être utilisées indépendamment. L'accès depuis la Calçada da Serra dessert les pièces de vie (entrée, salle de bains, cuisine, séjour/salle à manger et chambre), tandis que l'entrée du rez-de-chaussée, avec accès privé, dessert un espace de travail pour le propriétaire composé d’un atelier de design et un atelier d'artiste avec salle de bains.

Le principal atout du projet réside dans
ses grandes fenêtres à différentes hauteurs et sa terrasse. Ces éléments
structurent les espaces, contribuant à amplifier les dimensions modestes et à
créer une relation exceptionnelle avec le paysage.

À l’intérieur le béton apparent souligne le caractère essentiel du système constructif. Le sol est en pin verni, et les autres surfaces sont peintes pour mettre en valeur les éléments chromatiques et décoratifs de l'espace.

L’agence Cannatà & Fernandes Arquitetos, fondée en 2000 par Fátima Fernandes et Michele Cannatà, qui collaborent depuis 1984, a réalisé de nombreux projets au Portugal et en Italie, leurs pays d'origine respectifs, dans divers domaines de l'architecture, notamment l'urbanisme, le design de produits et le design graphique. L’agence intervient également dans les secteurs de l'édition de livres, commissariat d'expositions et organisation de séminaires internationaux d'architecture, et elle collabore régulièrement avec des universités et des institutions. En 2023, Riccardo Cannatà a rejoint l'équipe après douze ans passés à Tokyo au sein de l’agence Kazuyo Sejima + Ryue Nishizawa / SANAA. Mario Pisani

Client: Carlos Azeredo Mesquita; Project: Fátima Fernandes, Michele Cannatà; Structural engineering: João Maria Sobreira; Hydraulical Engineering: Gop – Raquel Fernandes; Electrical Engineering: Ohm – Fernando da Silva Gusmão; Mechanical HVAC Installations: GET – André Ortega Raposo; Acustic: Inacoustics - Octávio Inácio; Constructor: A.S. Vieira, Lda. Photo: Luís Ferreira Alves


