BAROZZI VEIGA, DYNAFIT HEADQUARTERS, KIEFERSFELDEN, ALLEMAGNE

L’agence d'architecture Barozzi Veiga, fondée en 2004 à Barcelone par l'Italien Fabrizio Barozzi (1976) et l'Espagnol Alberto Veiga (1973), a signé le siège social de Dynafit à Kiefersfelden, en Allemagne. Ce bâtiment, à l'esthétique saisissante et parfaitement intégré au paysage vallonné de Haute-Bavière, allie des géométries à la fois simples et monumentales.

Le projet se caractérise par un volume quasi abstrait, composé de deux corps pyramidaux parfaitement visibles depuis l'autoroute reliant l'Allemagne et l'Autriche. Ce volume, à la fois intime et monumental, privilégie la hauteur sur ses surfaces verticales d'un côté et recherche une échelle plus humaine sur ses faces inclinées de l'autre.

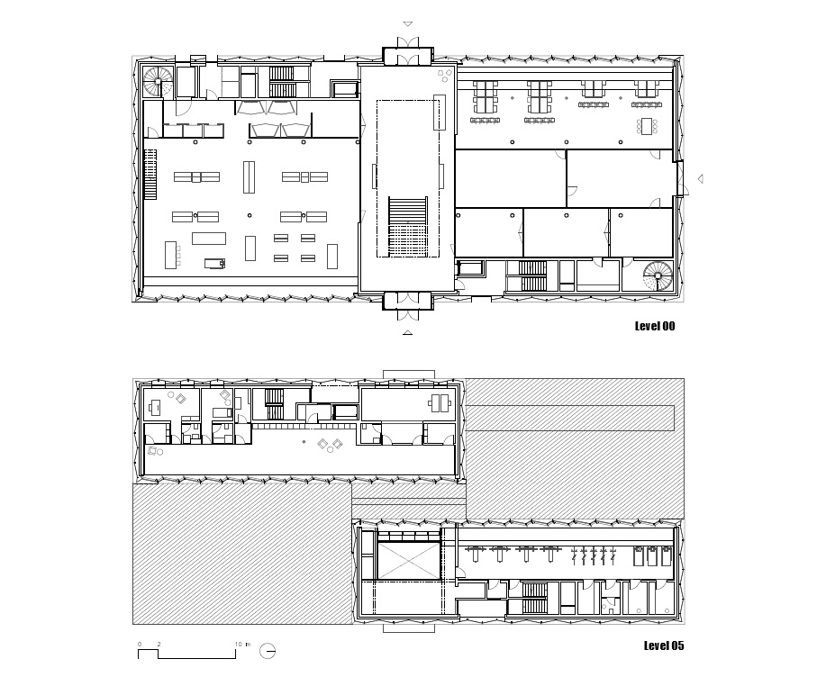
Malgré l'apparente simplicité du volume, la coupe révèle une riche spatialité qui enrichit l'expérience de ce bâtiment multifonctionnel, tant pour le personnel que pour les visiteurs, et favorise les échanges grâce à la variété des perspectives offertes par les différents espaces.

L'intérieur est conçu comme un système d'espaces ouverts, lumineux et fonctionnels, reposant sur un concept structurel qui optimise l'efficacité en concentrant les noyaux de services aux extrémités opposées de chaque étage.

S'inspirant des produits de la marque, réputée pour ses équipements haut de gamme de sports de montagne, les concepts de légèreté, d'efficacité et de technologie sont intégrés au système de façade. Ce dernier protège le bâtiment du rayonnement solaire tout en offrant une vue imprenable sur l'environnement.

La structure métallique diagonale de la façade accentue la perception de la géométrie du volume et confère au complexe une apparence extérieure riche et articulée qui, au gré des reflets de la lumière, métamorphose une géométrie simple en une expérience visuelle dynamique.

Client: Dynafit, Mountain Experience Beteiligungs-Holding; Project: Barozzi Veiga - Fabrizio Barozzi, Alberto Veiga; Team (competition): Yorgos Apostolopoulos, Andrea Bergamini, Paola Calcavecchia, Oskar Jobin, Kim-Lou Monnier, Alessandro Lussignoli, Rodrigo Martinez, Martin Meinecke, Miguel Pereira Vinagre, Toni Poch, Verena Recla, Andrei Sashko, Rob Scott, Nelly Vitiello; Team (project development): Verena Recla; Andrea Bergamini, Paola Calcavecchia, Caterina Delaini, Marta Grządziel, Hannes Lukesch, Vasco Marcolin, Cristian Munteanu, Sofia Pozzoli, Maxime Soquet, Elvira Turek, Maria Ubach, Anina Weber; Project manager and quantity surveyor: Plan Team; Project controlling: Plan Team; Structural engineer: Bergmeister Ingenieure; Services engineer: SHP - Stiefmüller Hohenauer & Partner; Building physics: SPEKTRUM Bauphysik & Bauökologie; Sustainability consultant: SPEKTRUM Bauphysik & Bauökologie; Facade consultant: Knippers Helbig; Acoustic consultant: SPEKTRUM Bauphysik & Bauökologie; Lighting consultant: Bartenbach; Fire consultant: K33 Brandschutz -Riedner Wagner+Partner; Landscape architect: Henning Larsen. Photographs: Simon Menges & Nino Tugushi, Brigida Gonzál


